1 / 13

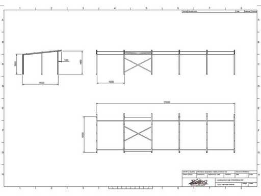
Lean-to - Steel construction 6.50 x 25.00 meters (162m2)

Current bid
Status

Total bid amount

See total breakdown

Max bid amount

See total breakdown
Lot specifications
Quantity
1
Margin
No
Material
Painted steel anthracite
Type
Afdak
Total surface
162
Ridge height
4450mm
Gutter height
3650mm
Total dimension L
25000mm
Total dimension W
6500mm
Description
free span of canopy construction; trusses c.o.h. 5000mm; front height 4450mm, rear height 3650mm; 4 sets of intermediate trusses HEA140; 2 sets of IPE140 end gable trusses with wind posts; steel drawing; 3D drawing; equipped with pressure tubes; wind bracing; purlin lips on the rafters; lot is neatly ready for transport and must be picked up with 1 trailer; Lot is loaded with a forklift for free
Additional details
Er is geen herroepingsrecht.
De minimumleeftijd voor het bezoeken van de kijk- en ophaaldagen is 18 jaar. Bezoekers moeten zich kunnen identificeren.
Tijdens de ophaaldag is een vorkheftruck met chauffeur beschikbaar, die kosteloos gebruikt kan worden. De maximale hefcapaciteit bedraagt 4 ton.
Gebruik van de vorkheftruck geschiedt geheel op eigen risico. Daarnaast kunnen zich wachttijden voordoen.

More from the same auction

View all

Download the Vavato app now!

App storeGoogle play